饮料瓶全自动装箱机的控制系统设计

在饮料灌装生产线上,装箱机将饮料瓶按一定排列方式定量装入箱中,称之为二次包装,其技术水平与自动化程度直接影响到整条生产线的生产效率,是饮料灌装生产线上不可缺少的设备。
目前,国内普遍使用连续往复式的四连杆全自动装箱,其功能和形式较为先进,但由于其运行轨迹是弧线,所以抓、放瓶的准确度不够,特别是急停时抓瓶装置会出现一定程度的摆动。
因此本文提出一种以平移导轨和双轴伺服系统进行传动,使得抓头装置按垂直和水平方向运行,噪音小,效率高,抓、放瓶较准确,并采用变频器对输送带进行变频调速,以触摸屏作为图形操作终端,实现装箱机的高自动化、柔性化,提高了可靠性、稳定性、灵活性。
装箱机系统组成与工艺流程
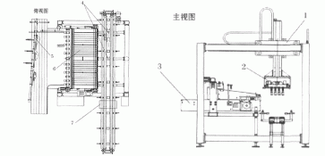
装箱机的功能是取瓶装箱,其机械总体机构如图1所示。1)输瓶带大量无序的瓶子由过渡挡板引导至输瓶台,经过排瓶挡板后整齐的排列到抓头正下方,以供取瓶;2)空箱由入口输箱带输入预定数量,利用入口止箱器停止进箱,包装区前后止箱器实现对已入空箱的分组和定位,以供装箱;3)双轴伺服系统完成从输瓶带进行抓瓶一充气—双轴升降平移一放气一放瓶装箱一返回输瓶带进行下一轮抓瓶装箱的周期过程。

图1 装箱机总体结构示意图
系统硬件结构设计
为使得输送效率得到提高,对瓶台电机和输箱带电机实行多段调速。传统装箱机采用双速电机实现快慢两种速度的切换,随着变频技术的广泛应用,本文改用变频器十单速电机实现调速,这种取代使得装箱机在改造过程中的调试更加方便,尤其在装纸箱的改造方面,配合整机动作的柔性速度要求更加突出。
控制系统软件设计
对装箱机的操作分为控制面板和人机界面的操作。对于控制电压、自动、手动、原点、复位等重要操作,设计在控制面板上进行按钮操作,对于手动操作中具体功能的操作在人机界面中执行。
1初始化子程序
初始化操作包括各软元件恢复到初始值、异常状态的检测、伺服定位模块的运行参数的初始设置、前等位的设定、当前抓头位置的读取等。
2原点回归程序
本文不采取限位开关处作为原点,而是在预定原点位置(输箱带正上方y轴最高点处为原点,也称前等位)设置光电开关作为近点信号DOG,然后进行DOG搜索完成原点回归。由于原点回归位置不同,原点回归动作也相应不同。具体情况如图2, 3所示。

图2 原点回归不同位置示意图

图3 原点回归动作流程图
3自动运行程序
自动过程配合光电检测系统完成从输瓶一抓瓶一装箱一输箱一回程整个周期的全自动运行,并包括各种异常出现的自动处理和箱少自动补箱。自动流程图如图4所示。

图4 自动流程框图
3.1双轴转角处运行控制设计
本系统中垂直轴完成抓头的升降,水平轴完成抓头在输瓶带与输箱带问的行走,两轴为相互独立运行。不过当单轴运行到转角处时会对导轨产生一定的冲击,而且转角处动作不连贯,影响机床的稳定性。因此本文仿照最小偏差法原理,在转角处对两轴进行仿圆弧插补,增强运动平稳性和柔性。
图5抓头状态为已充气抓瓶,并沿Y轴向后等位正程运行。当经过Y正处时,X轴电机开始启动,向前等位运行;当X轴运行至X正处时,Y轴开始启动,开始向前终位运行,从而在转角处两轴进行顺利过渡。

图5 仿圆弧插补示意图
3.2空箱自动定位
在输箱带上设置图6所示6个光电开关,配合三个止箱器完成对六个空箱进行分组及定位。其中光电开关5与入口止箱器7之问的距离为5.5个箱长,光电开关6与后止箱器的距离为2.5个箱长。

图6 空箱定位示意图
当入口箱带输入5.5个空箱时,光电开关5被遮时,此时落下入口止箱器7,依靠惯性6个空箱进入包装区;当光电开关6被遮时,同时竖起前后止箱器,前止箱器挡住空箱,后止箱器完成分组,从而完成空箱的自动分组及定位。光电开关1234分别检测空箱的排列状况。
触摸屏GOT画面设计
GOT(图形操作终端)是指在画面上实现以往操作盘所进行的开关操作、指示灯显示、数据显示、数据输入、信息显示等的电子操作盘。根据实际生产需要,本系统主要包括以下四种画面:操作界面、监视界面、设定界面、操作指南。
1操作画面
利用GOT中的开关对象,通过设置PLC相应的位软元件实现系统所有所需功能的操作。操作画面中除设置控制面板的操作外,增设了装箱机各个执行机构的操作,极大提高了GOT的交互性。

图7 GOT操作画面
2监视界面
利用GOT中的指示灯、数值显示对象与PLC的软元件(位、字)相对应完成系统的显示功能。
本系统主要完成包括伺服报警、变频报警、安全光栅、限位开关、急停等各种异常状况的显示,通过设置指示灯ON/OFF颜色显示方式来反映各种状态的变化,并监视当前抓头位置、速度等运行参数。
3设定界面
设定功能是GOT不同于操作盘的重要功能。利用GOT中数值输入对象设置对应PLC软元件(位、字),实现系统的位置、速度、时问等运行参数的设置。

图8 GPT设定界面
考虑到市场对包装的需求变化,饮料的瓶型和包装箱型会有所改变,可通过设定界面对PLC控制程序中的瓶型箱型参数进行修改,提高了装箱机的灵活性和适应性。
画面的制作是在PC机上运行专用软件GT Designer2行设绘的,绘好后下载到GOT中。然后编制PLC程序将GOT画而内容与控制程序结合起来。
下一篇:没有了

